bg

Просторен обзаведен двустаен апартамент в Свети Влас със собствен двор

България / Област Бургас / Свети Влас
46755
ID на сайта:
99 500
EUR
BGN
2
Брой стаи
71.28 м2
Площ
1
Етаж
5
Брой етажи

Предлагаме на вашето внимание просторен двустаен апартамент в Свети Влас. Намира се в тих комплекс, на 400 м от плажа.
Имотът е разположен на първи етаж в пететажна сграда с асансьор, с Акт 16. построена през 2017 година. Комплексът предлага отлично поддържани общи части, басейн, видеонаблюдение и множество паркоместа.
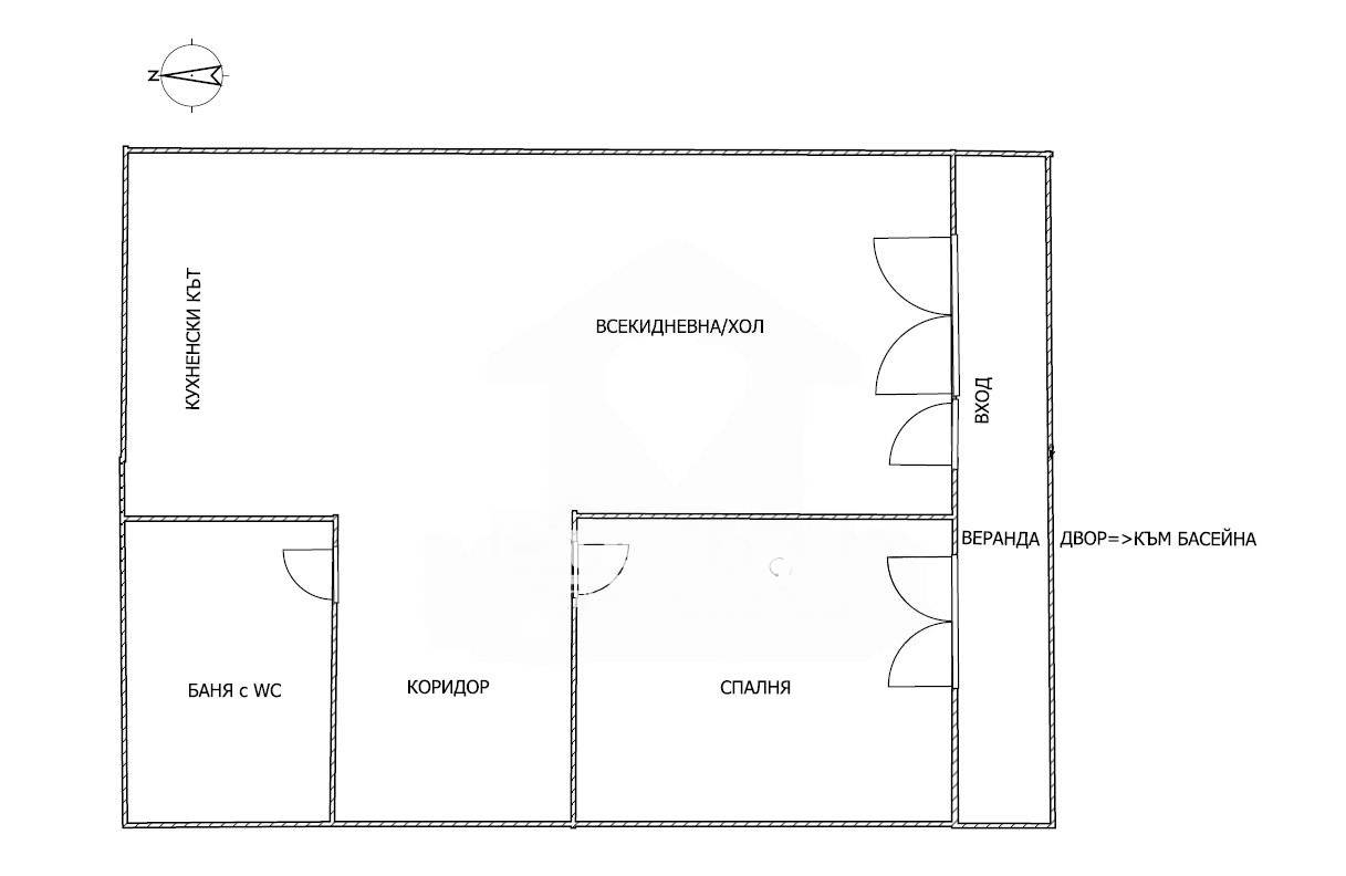
Жилището се състои от всекидневна с кухненски кът, спалня, санитарен възел и голям коридор, където може да се обособи кабинет, допълнително място за спане или дрешник. Пред апартамента има просторна веранда откъдето има директен достъп към басейна.
Мебелите в жилището са нови. Спалнята е стилно обзаведена с двойно легло и голям функционален гардероб и скрин. Всекидневната предлага зона за отдих с удобен диван и място за хранене с трапезна маса.
Кухненския кът е напълно оборудван с нови уреди (хладилник, готварска печка, аспиратор).
Във всички стаи са инсталирани климатици.

ID 19222
Печат  |  Обект на картата
Сподели
Офис
г. Бургас, ЖК "Лазурь" №153, партер
Отговорен брокер
Диана Атанасова
ТЕЛ/VIBER
Запитване на информация за обекта
Контакты
Напиши
Препоръчваме да видите също така
В избрани
В избрани
В избрани
В избрани
Разгледани обекти

Региони

Разположение

  Facebook
  Instagram
  YouTube
  Telegram